Kursy walut NBP: USD 3,98 | EUR 4,32 | CHF 4,53 |

Wyszukiwarka
Notes
Zgłoś ofertę
Kalkulator
O nas
Kontakt

Mieszkania
Domy
Działki
Lokale
Obiekty
Szczegóły oferty
Rodzaj oferty
dom ( wynajem )
Numer oferty
12658985
Miejscowość
WARSZAWA, MOKOTÓW
Ulica
Wołoska
Cena
12 000 PLN
Cena za mkw
60 PLN mkw
Powierzchnia
200.00 m2
Pow. działki
260.00 m2
Liczba pokoi
7
Liczba pięter
3
Stan domu
bardzo dobry
Rok budowy
1970
Droga dojazdowa
asfaltowa
Opis
Do wynajęcia wyjątkowy dom w zabudowie szeregowej.
Nieruchomość jest częściowo umeblowana, wyposażona w sprzęt AGD, RTV oraz trzy klimatyzatory.
Dom składa się z trzech kondygnacji oraz poziomu -1 i został wykończony w wysokim standardzie.

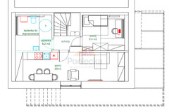
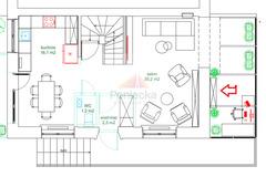
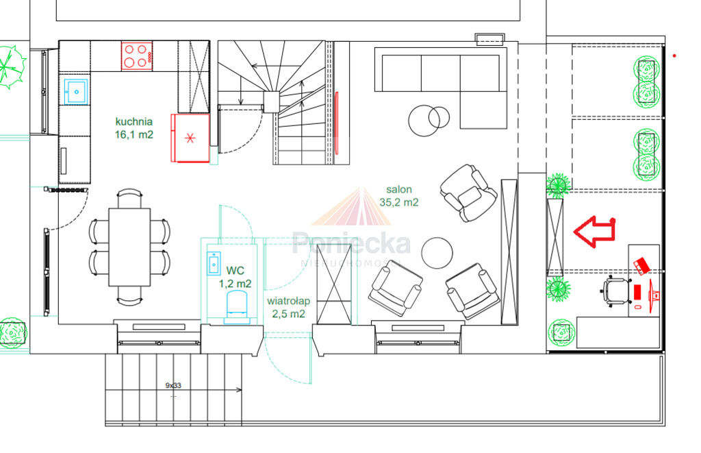
Rozkład pomieszczeń Kondygnacja 1 (parter)
przestronny salon,
jadalnia z aneksem kuchennym,
toaleta,
przedpokój,
nowy ogród zimowy,
taras z wyjściem na zadbany ogródek.
Kondygnacja 2
dwie sypialnie (większa i mniejsza),
łazienka z wanną,
balkon (dostępny z większej sypialni).
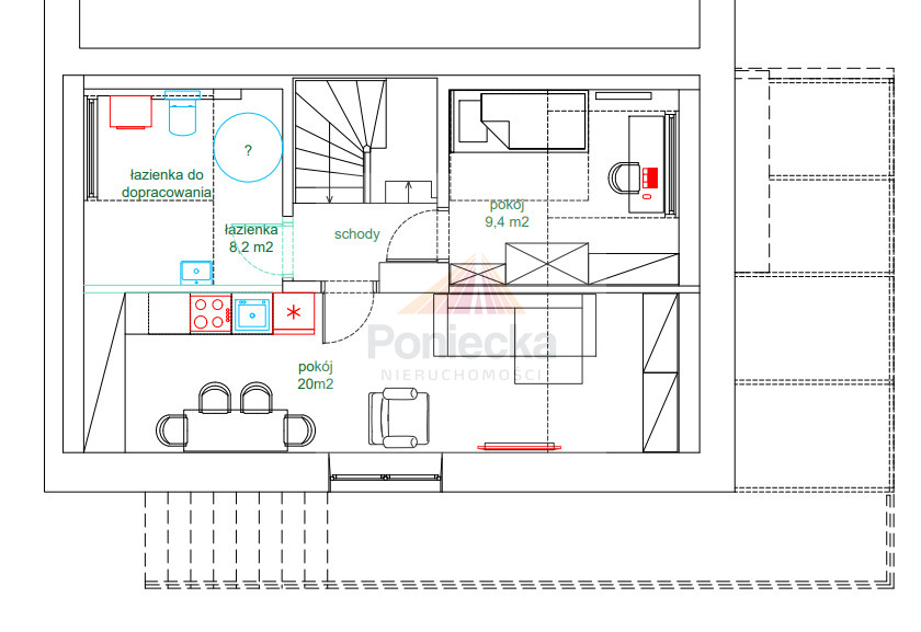
Kondygnacja 3
nieumeblowany pokój,
gabinet/ garderoba łazienka z kabiną prysznicową.
Poziom -1
dodatkowy pokój z kanapą,
pralnia z suszarnią i toaletą,
schowek na sprzęt ogrodowy.
Dodatkowe informacje Okna wychodzą na wschód, południe i zachód, dzięki czemu dom jest bardzo dobrze doświetlony.
Działka o powierzchni 260 m2.
Możliwość zaparkowania dużego samochodu na terenie posesji.
Dom gotowy do wprowadzenia. Kaucja 24 000 PLN.
Najemca pokrywa koszty mediów gaz, woda, prąd, ochrona, Internet.
Oferta idealna dla rodziny z dziećmi szukającej komfortowego i spokojnego miejsca do życia.
Lokalizacja Świetnie skomunikowana okolica w pobliżu
C.H. Westfield Mokotów,
Pole Mokotowskie,
przystanki tramwajowe i autobusowe,
biurowe centrum Służewca,
dogodny dojazd do lotniska Chopina.


ENG
Beautiful House for Rent.
A unique house available for rent finished to a high standard.
The property is partly furnished, equipped with household appliances and three air-conditioning units.
The house consists of three floors plus a basement level (-1).
Room layout
Ground floor
spacious living room,
dining area with an open kitchen,
guest toilet,
hallway,
new winter garden,
terrace with access to a well-maintained garden.
First floor
two bedrooms (one larger, one smaller),
bathroom with a bathtub,
balcony accessible from the larger bedroom.
Second floor
one unfurnished room,
office / walk in closet bathroom with a shower cabin.
Basement (-1)
additional room with a sofa,
laundry room with drying area and toilet,
storage room for garden equipment.
Additional information Windows facing east, south, and west ensure excellent natural lighting throughout the day.
Plot area 260 m2.
Possibility to park a large car on the property.
Available to move in. Security deposit PLN 24,000.
The tenant covers utility costs gas, water, electricity, security, and Internet.

This offer is perfect for a family with children looking for a comfortable and peaceful place to live.
Location Excellent location with convenient transport connections. Nearby
Westfield Mokotów Shopping Center,
Pole Mokotowskie Park,
tram and bus stops,
the Służewiec business district,
easy access to Chopin Airport.



Dodatkowe informacje: umeblowane, piwnica, garaż

Kontakt do agenta

Dorota Poniecka Nieruchomości
Sarmacka 12 E lok.12
02-972 Warszawa
tel.: 505 059 024 lub 516 156 467
email: dorota@nieruchomoscidp.pl

Wyślij zapytanie

Imię i Nazwisko
Telefon
E-mail
Treść zapytania

Wyrażam zgodę na przetwarzanie moich danych osobowych przez firmę Dorota Poniecka Nieruchomości dla celów związanych z działalnością pośrednictwa w obrocie nieruchomościami, jednocześnie potwierdzam, iż zostałem poinformowany o tym, iż będę posiadać dostęp do treści swoich danych do ich edycji lub usunięcia.

Wyślij ofertę

E-mail
© 2026 Dorota Poniecka Nieruchomości. Wszystkie prawa zastrzeżone.