Kursy walut NBP: USD 3,98 | EUR 4,32 | CHF 4,53 |

Wyszukiwarka
Notes
Zgłoś ofertę
Kalkulator
O nas
Kontakt

Mieszkania
Domy
Działki
Lokale
Obiekty
Szczegóły oferty
Rodzaj oferty
działka budowlana ( sprzedaż )
Numer oferty
12565109
Miejscowość
KAJETANY
Ulica
Czarny Las
Cena
450 000 PLN kalkulator
Cena za mkw
450 PLN mkw
Powierzchnia
1000.00 m2
Droga dojazdowa
asfaltowa
Opis
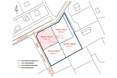
Na sprzedaż działka budowlana nr ewid. 198/15 o powierzchni 1000 m2 w Kajetanach, gmina Nadarzyn, położona bezpośrednio przy ul. Czarny Las. Działka narożna o wymiarach ok. 32 33 - dojazd z dwóch stron.

MPZP
Teren objęty jest miejscowym planem zagospodarowania przestrzennego MPZP przeznaczającym go pod zabudowę jednorodzinną i bliźniaczą

* maks. 40% powierzchni zabudowy
* wysokość zabudowy do 12 m
* minimalna powierzchnia działki przy zabudowie bliźniaczej - 500 m2, także dwulokalowej
* powierzchnia biologicznie czynna - 60%

PRZEZNACZENIE
To idealna propozycja dla osób, które chcą

* wybudować dom w zabudowie bliźniaczej i sprzedać jedną połowę
* wejść w pierwszą małą inwestycję deweloperską
* mieszkać w dwie rodziny, każdy na swoim

MEDIA
Media w drodze przy działce woda, kanalizacja, prąd. W planach światłowód.

SĄSIEDZTWO I OKOLICA
Około 3 km do wjazdu na trasę S8 węzeł Nadarzyn, ok. 25 km do centrum Warszawy, w sąsiedztwie lasy i pola, oraz nowopowstająca zabudowa jednorodzinna.

Istnieje możliwość zakupu sąsiadujących działek o takiej samej powierzchni i wymiarach, bądź całego terenu 63 x 63 m = 4072m2

Dodatkowe informacje: kanalizacja, media - prąd

Kontakt do agenta

Dorota Poniecka Nieruchomości
Sarmacka 12 E lok.12
02-972 Warszawa
tel.: 505 059 024 lub 516 156 467
email: dorota@nieruchomoscidp.pl

Wyślij zapytanie

Imię i Nazwisko
Telefon
E-mail
Treść zapytania

Wyrażam zgodę na przetwarzanie moich danych osobowych przez firmę Dorota Poniecka Nieruchomości dla celów związanych z działalnością pośrednictwa w obrocie nieruchomościami, jednocześnie potwierdzam, iż zostałem poinformowany o tym, iż będę posiadać dostęp do treści swoich danych do ich edycji lub usunięcia.

Wyślij ofertę

E-mail
© 2026 Dorota Poniecka Nieruchomości. Wszystkie prawa zastrzeżone.